Apartamento · Obra Nueva Playa De El Cura · Costa Blanca Sur

REF: N9380
235.000€

Vista general

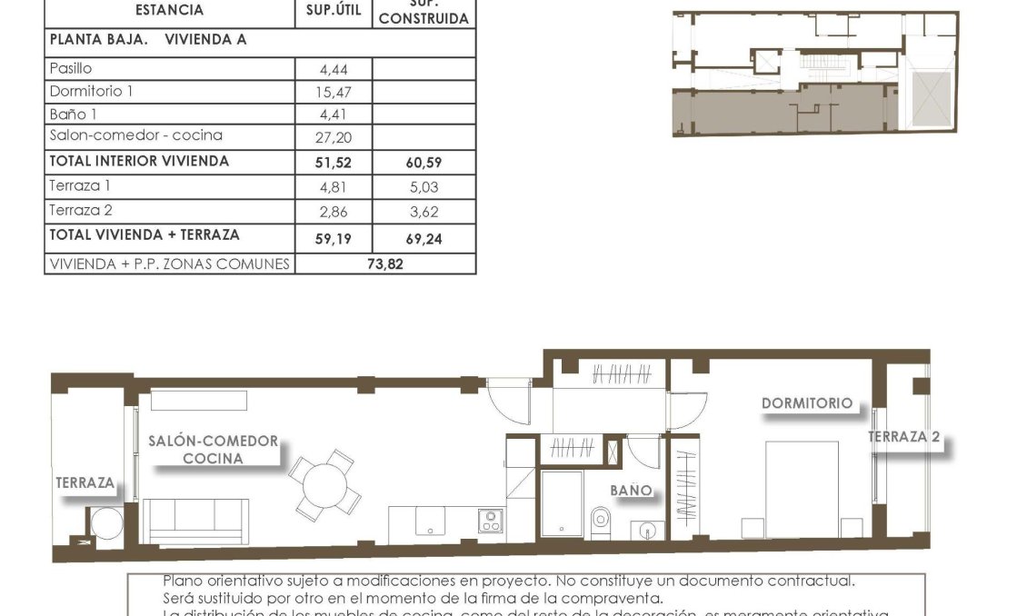
  • Metros60m2
  • Habitaciones1
  • Baños1
  • Piscina

Descripción

Apartamentos de nueva construcción en el corazón de Torrevieja

Localización

Haz tu consulta

Responsable del tratamiento: Desire Property Rentals, SL, Finalidad del tratamiento: Gestión y control de los servicios ofrecidos a través de la página Web de Servicios inmobiliarios, Envío de información a traves de newsletter y otros, Legitimación: Por consentimiento, Destinatarios: No se cederan los datos, salvo para elaborar contabilidad, Derechos de las personas interesadas: Acceder, rectificar y suprimir los datos, solicitar la portabilidad de los mismos, oponerse altratamiento y solicitar la limitación de éste, Procedencia de los datos: El Propio interesado, Información Adicional: Puede consultarse la información adicional y detallada sobre protección de datos Aquí.
Buscar propiedades
WhatsApp ¡Hablemos!