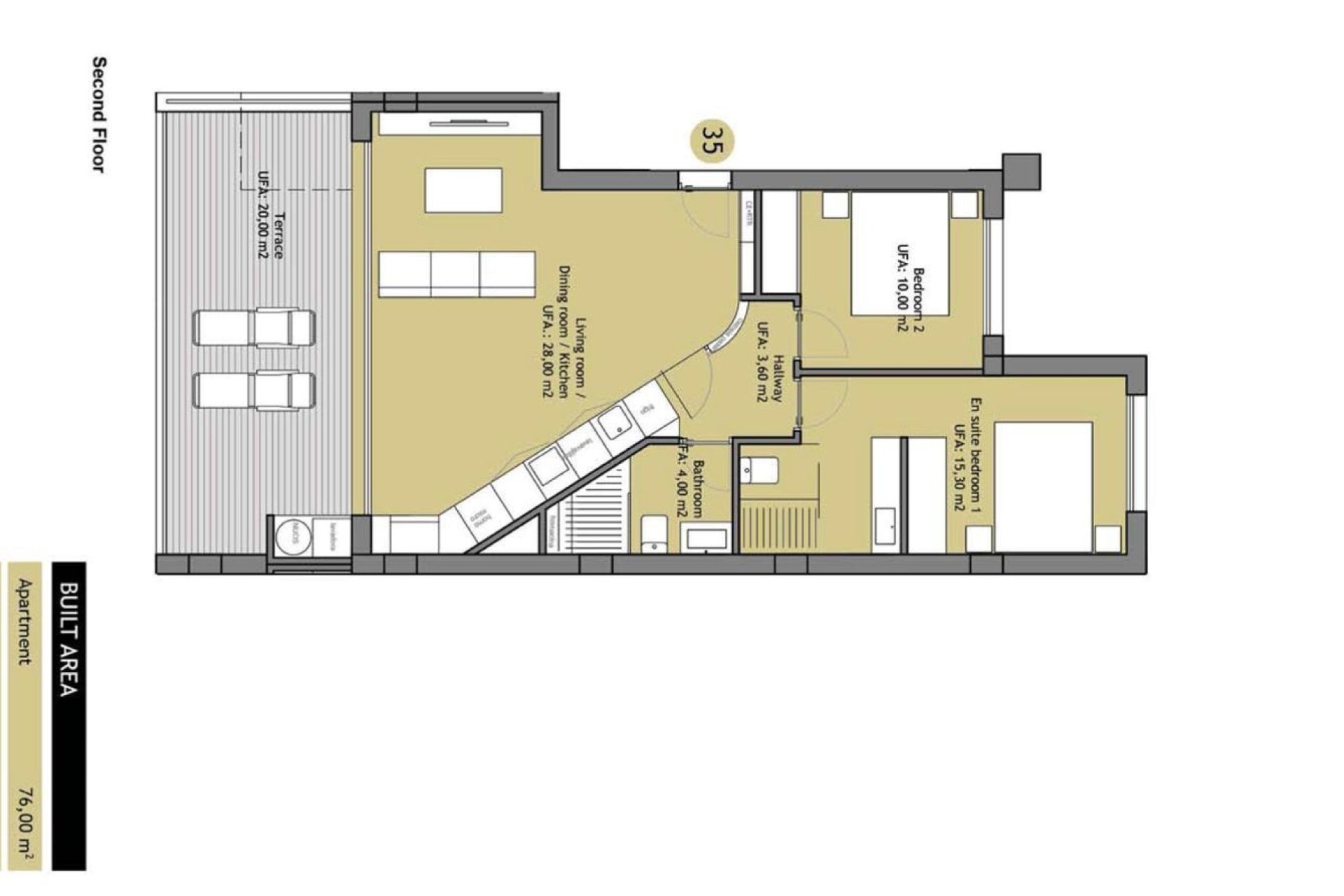
Apartamento de 2 dormitorios en Hinojo en Las Colinas Golf Si sueña con una casa de lujo en Las Colinas Golf and Country Club, en el clima más favorable de España, le ofrecemos este apartamento de ensueño amueblado en la Comunidad Hinojo 1, en la segunda planta. Al entrar, le recibe un ambiente cálido y acogedor. Este apartamento orientado al sur está amueblado y decorado con cariño al estilo ibicenco. El salón cuenta con tres grandes ventanales en todo su ancho, que se pueden abrir completamente para que la terraza, con el mismo suelo de baldosas, se convierta en una extensión del salón. Desde esta terraza, con un acogedor conjunto de salón, podrá disfrutar de una magnífica vista con mucha vegetación (bosque), el mar y el Mar Menor con la Manga. La cocina está equipada con electrodomésticos de lujo Bosch y se puede cerrar completamente con una amplia pared blanca. Hay dos dormitorios con amplios armarios empotrados y espacio de almacenamiento adicional debajo de las camas. El dormitorio principal tiene un lujoso baño en suite, y el segundo dormitorio también tiene su propio baño independiente. El apartamento incluye aparcamiento subterráneo y trastero privado. Las principales ventajas de este apartamento son: Totalmente amueblado Terraza orientada al sur Muy bien mantenido y limpio Como nuevo; sin daños ni defectos Vista fantástica Totalmente situado en el soleado sur La terraza está cerrada con paredes de cristal para que también tenga una vista completa mientras está sentado Aire acondicionado en todas las habitaciones Agua potable filtrada Lavadora/secadora disponible en el armario exterior Las Colinas Golf & Country Club ¡Un mundo aparte! Las Colinas Golf & Country Club es uno de los resorts más prestigiosos de la Costa Blanca. Es un exclusivo y único resort de golf de 330 hectáreas con muchas instalaciones deportivas, incluyendo golf, pádel, senderismo, fitness, yoga y mucho más. Es un mundo aparte donde podrá disfrutar de un estilo de vida mediterráneo saludable. Con un clima excepcional y servicios de primera clase, el resort ha sido reconocido como "Mejor Resort de Villas de España y Europa" por los World Travel Awards en los últimos años. Enclavado entre las colinas de la Dehesa de Campoamor, en la costa mediterránea al sur de Alicante, Las Colinas Golf & Country Club es un espacio natural único que se ha conservado cuidadosamente y donde se han integrado casas exclusivas en el entorno, donde podrá relajarse y disfrutar del paisaje. Este resort, con algunos excelentes restaurantes y la playa Wow by Las Colinas, tiene una reputación internacional y es conocido y buscado por celebridades. ¡Encuentre la casa de sus sueños hoy mismo echando un vistazo a las casas más bellas y exclusivas que tenemos para ofrecer!