LA MÉDITERRANÉE À L'ÉTAT PUR, À L'INTÉRIEUR ET À L'EXTÉRIEUR DE VOTRE MAISON
A mi-chemin entre le Sleeping Lion Peak et la baie d'Altea, Polop de la Marina est la commune qui abrite cette villa nouvellement construite.
Située dans un quartier résidentiel calme, entourée d'un environnement incomparable, cette villa est l'endroit idéal pour faire une pause après une journée à profiter de la Méditerranée à l'état pur.
Grâce à son emplacement, à quelques minutes des meilleures criques et plages de sable blanc (El Albir, Altea, Calpe et Villajoyosa) et à proximité d'excellents terrains de golf, centres sportifs et parcs à thème, cette villa deviendra votre refuge idéal pour explorer la culture, nature et gastronomie de la Costa Blanca.
Sa conception architecturale et sa large distribution sur un seul étage permettent à toutes les pièces d'avoir un accès direct à la piscine privée et à l'espace barbecue grâce à d'immenses fenêtres.
De plus, le spectaculaire solarium de 60 m2 avec accès direct depuis le jardin vous séduira par ses couchers de soleil et sa vue sur la Méditerranée.
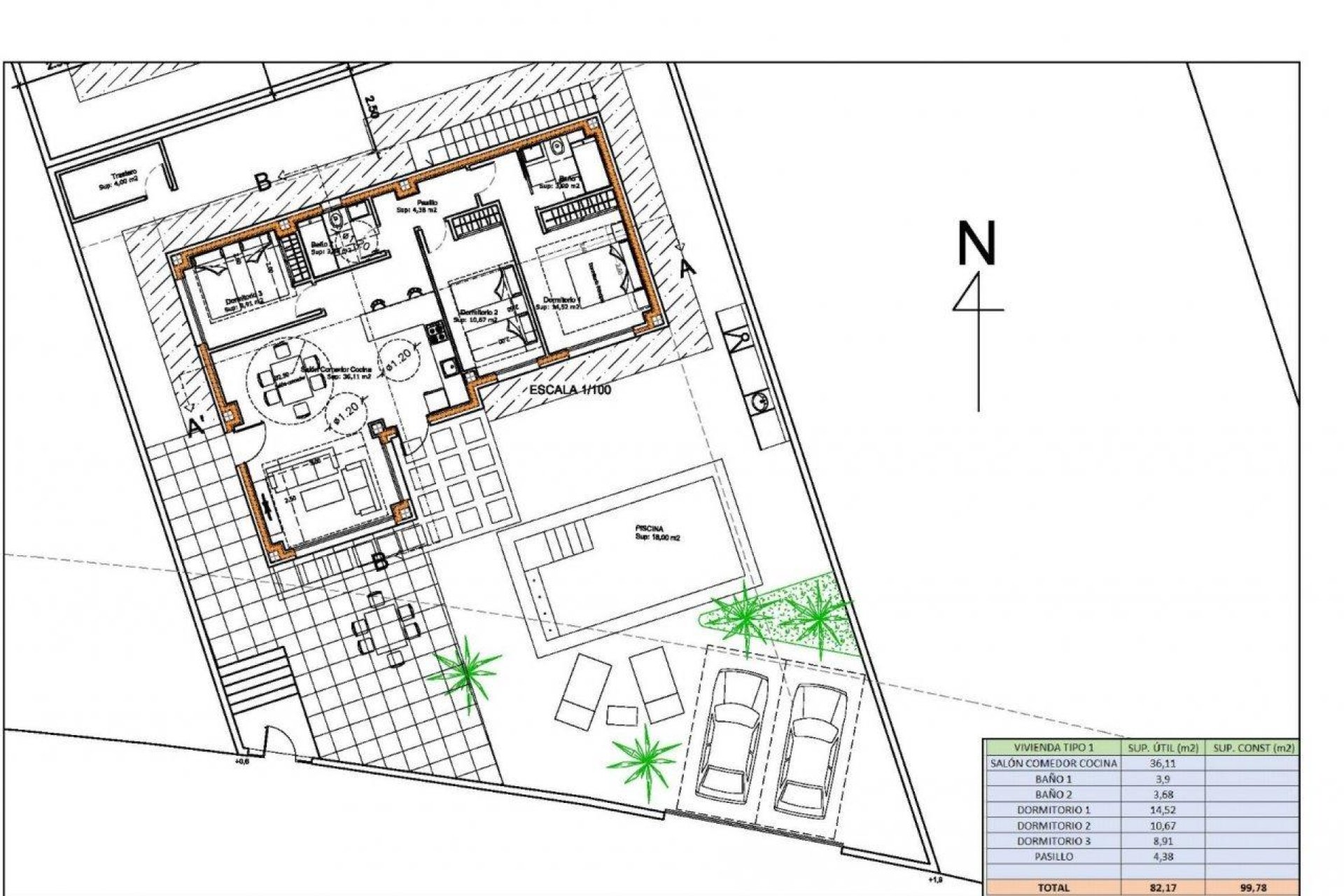
Avec 400 m2 de terrain et 100 m2 de surface, la villa est distribuée en salon - cuisine entièrement équipée, 3 chambres doubles et 2 salles de bains, toutes deux avec système de chauffage au sol. La pré-installation de la climatisation et les meilleures finitions du marché vous feront profiter de tout le confort que vous méritez dans un environnement authentiquement méditerranéen.