Appartements neufs modernes avec équipements sur le toit à Las Mesas Estepona
Emplacement privilégié dans l'un des quartiers les plus prometteurs d'Estepona
Ce nouveau complexe résidentiel exclusif est situé à Las Mesas, l'un des quartiers les plus prisés et en pleine expansion d'Estepona, sur la Costa del Sol. À seulement 1 km de la plage et à quelques minutes du centre-ville, le projet bénéficie d'un emplacement stratégique, entouré de services, de nature, de terrains de golf et d'une offre gastronomique et culturelle exceptionnelle. Estepona, connue comme le jardin de la Costa del Sol, allie le charme d'une ville andalouse traditionnelle à l'énergie d'une ville cosmopolite moderne.
Des maisons contemporaines conçues pour la vie méditerranéenne
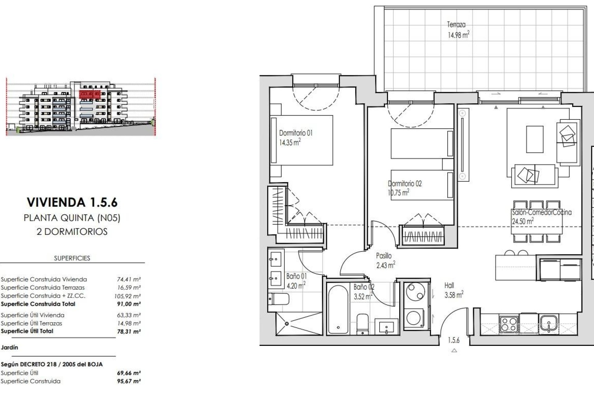
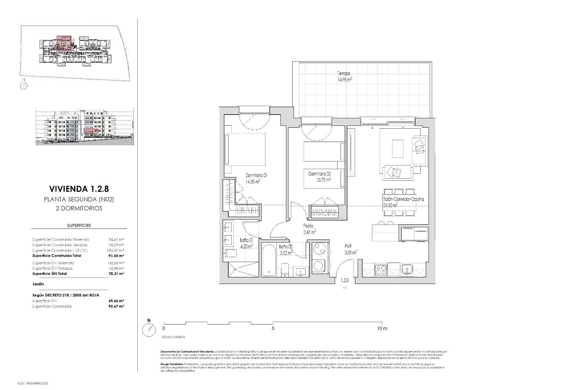
Le projet comprend 43 appartements élégants de deux et trois chambres, conçus pour offrir confort, style et lumière naturelle tout au long de l'année. De grandes fenêtres permettent au soleil méditerranéen d'inonder chaque pièce, tandis que la connexion harmonieuse entre les espaces de vie et les terrasses renforce la sensation d'espace et de vie en plein air. Depuis votre maison, vous profiterez d'une vue sur les montagnes ou les jardins paysagers du complexe, créant une atmosphère paisible et intime.
Toit-terrasse et équipements communs exceptionnels
L'un des points forts de ce projet est son impressionnant toit-terrasse avec jacuzzi chauffé et espace barbecue, idéal pour se détendre et se retrouver tout en profitant d'une vue imprenable. Les résidents bénéficient également d'une piscine paysagée, d'une salle de sport intérieure, d'une salle de coworking, d'un sauna et d'un bain turc. Ces espaces soigneusement conçus favorisent le bien-être, les loisirs et un mode de vie communautaire dynamique.
Spécifications de haute qualité et options
Toutes les maisons comprennent des cuisines de conception italienne entièrement équipées d'appareils électroménagers, des salles de bains équipées de meubles-lavabos, de miroirs et de parois de douche, ainsi qu'une place de parking et un débarras. Les appartements du rez-de-chaussée et les penthouses offrent la possibilité d'installer des mini-piscines privées moyennant un coût supplémentaire, ce qui apporte un niveau supplémentaire de confort et d'exclusivité.
Excellentes connexions et points d'intérêt à proximité
Las Mesas offre un excellent accès à l'autoroute A7, ce qui permet de se déplacer facilement le long de la côte. Les distances clés sont les suivantes : plage de La Rada à 1 km, marina d'Estepona à 2 km, vieille ville d'Estepona à 1,5 km, plusieurs terrains de golf à moins de 5 km, Puerto Banus à 20 km, Marbella à 30 km, l'aéroport de Malaga à 80 km et l'aéroport de Gibraltar à 45 km.
Assurez-vous dès aujourd'hui votre nouvelle maison à Estepona
Ce programme immobilier est le choix idéal pour ceux qui recherchent une maison moderne proche de la mer, avec des équipements haut de gamme, dans l'un des meilleurs emplacements de la Costa del Sol. Contactez-nous dès maintenant pour obtenir plus d'informations ou pour organiser une visite.
638