Appartement · Nouvelle Construction Hipódromo Costa Del Sol · Costa del Sol

REF: N9013
510.000€

Aperçu

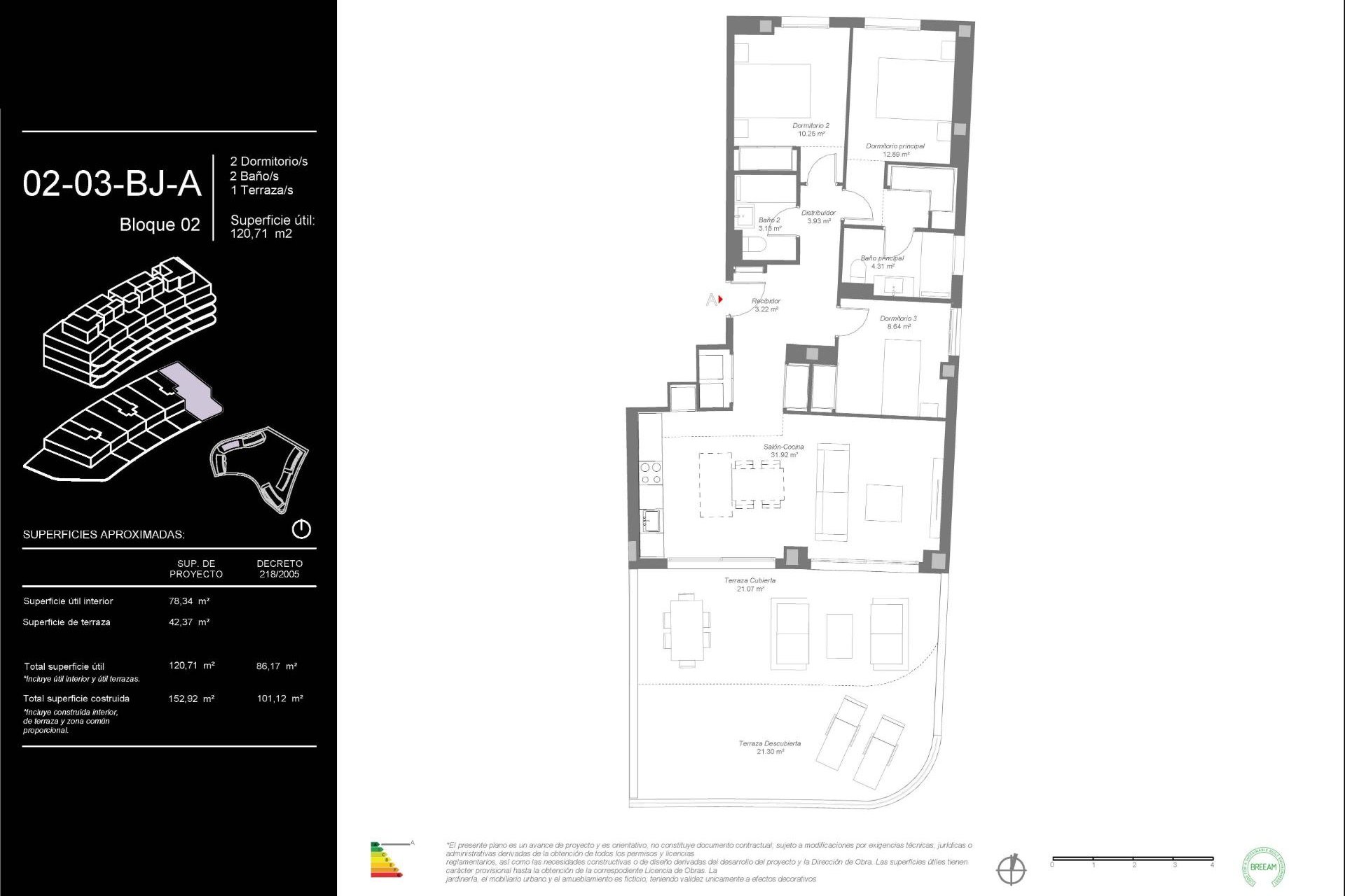
  • Mètres101m2
  • Chambres3
  • Nbr. Sdb2
  • PiscineOui

La description

Maisons neuves à Mijas Costa

Emplacement

Faites votre demande

Responsable du traitement: Desire Property Rentals, SL, Finalité du traitement: Gestion et contrôle des services proposés sur le site Web des Services immobiliers, Envoi d'informations via newsletter et autres, Base légale: Par consentement, Destinataires: Les données ne seront pas partagées, sauf à des fins comptables, Droits des personnes concernées: Accéder, rectifier et supprimer les données, demander leur portabilité, s’opposer au traitement et en demander la limitation, Source des données: La personne concernée, Informations supplémentaires: Vous pouvez consulter les informations supplémentaires et détaillées sur la protection des données Ici.
Rechercher des propriétés
WhatsApp Parlons-en!