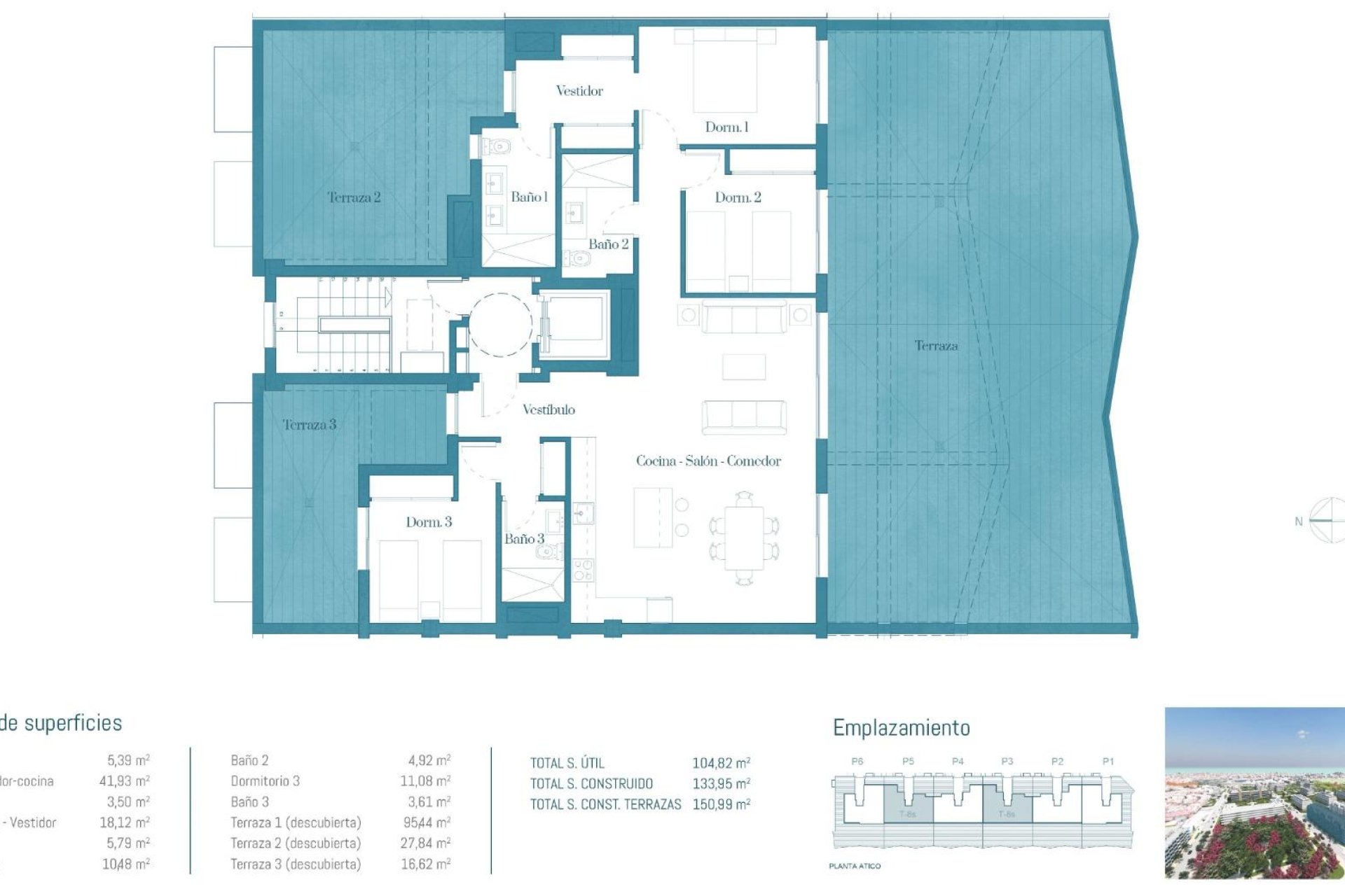
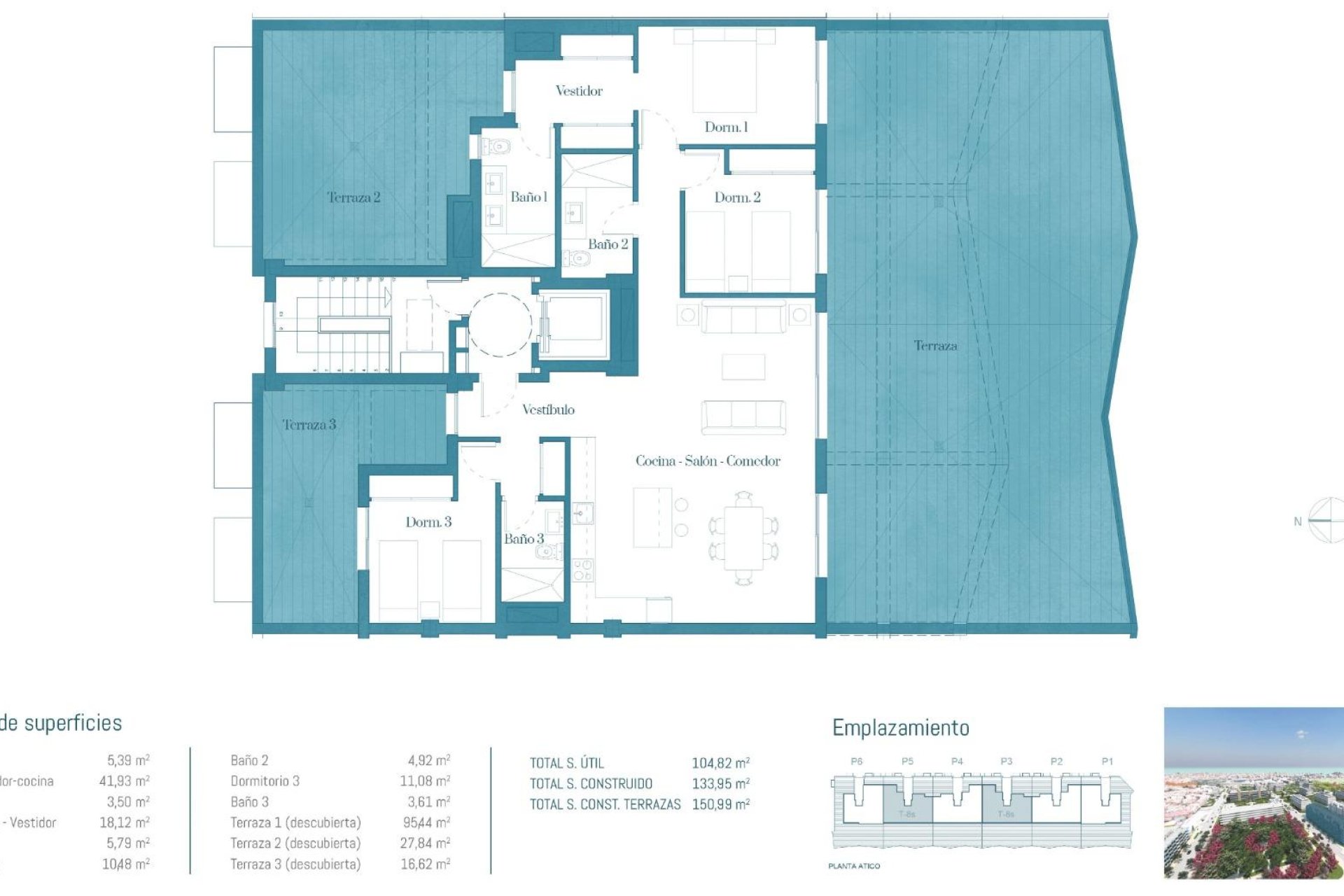
Complexe résidentiel calme et fermé, composé d'appartements de 1, 2 et 3 chambres et de penthouses de 3 chambres. Toutes les propriétés disposent d'un garage et d'une salle de stockage. Climatisation avec pompe à chaleur. Chauffage au sol dans les salles de bains avec contrôle indépendant. Terrasses spectaculaires permettant de contempler la nature environnante.
Emplacement fantastique, avec la meilleure offre commerciale de la Costa del Sol à seulement 5 minutes, et à seulement 2 km de la plage. Accès rapide aux principaux moyens de communication : autoroute et gare (2 km), et aéroport (25 km). Vous pourrez profiter d'une véritable qualité de vie, avec une grande variété de terrains de golf, 12 km de côte, du soleil, de la nature et de la gastronomie de la région, de ses restaurants internationaux à sa cuisine locale chaleureuse.
Mijas allie parfaitement la tradition de ses rues pavées, de ses maisons blanchies à la chaux et de ses patios avec leurs pots de fleurs colorés, à la modernité et à la meilleure offre de loisirs de la Costa del Sol. Sa situation privilégiée entre mer et montagne en fait l'une des destinations touristiques les plus attrayantes de la province.
638