Villa · Nouvelle Construction Torreblanca · Costa Blanca South

REF: N6593
750.000€

Aperçu

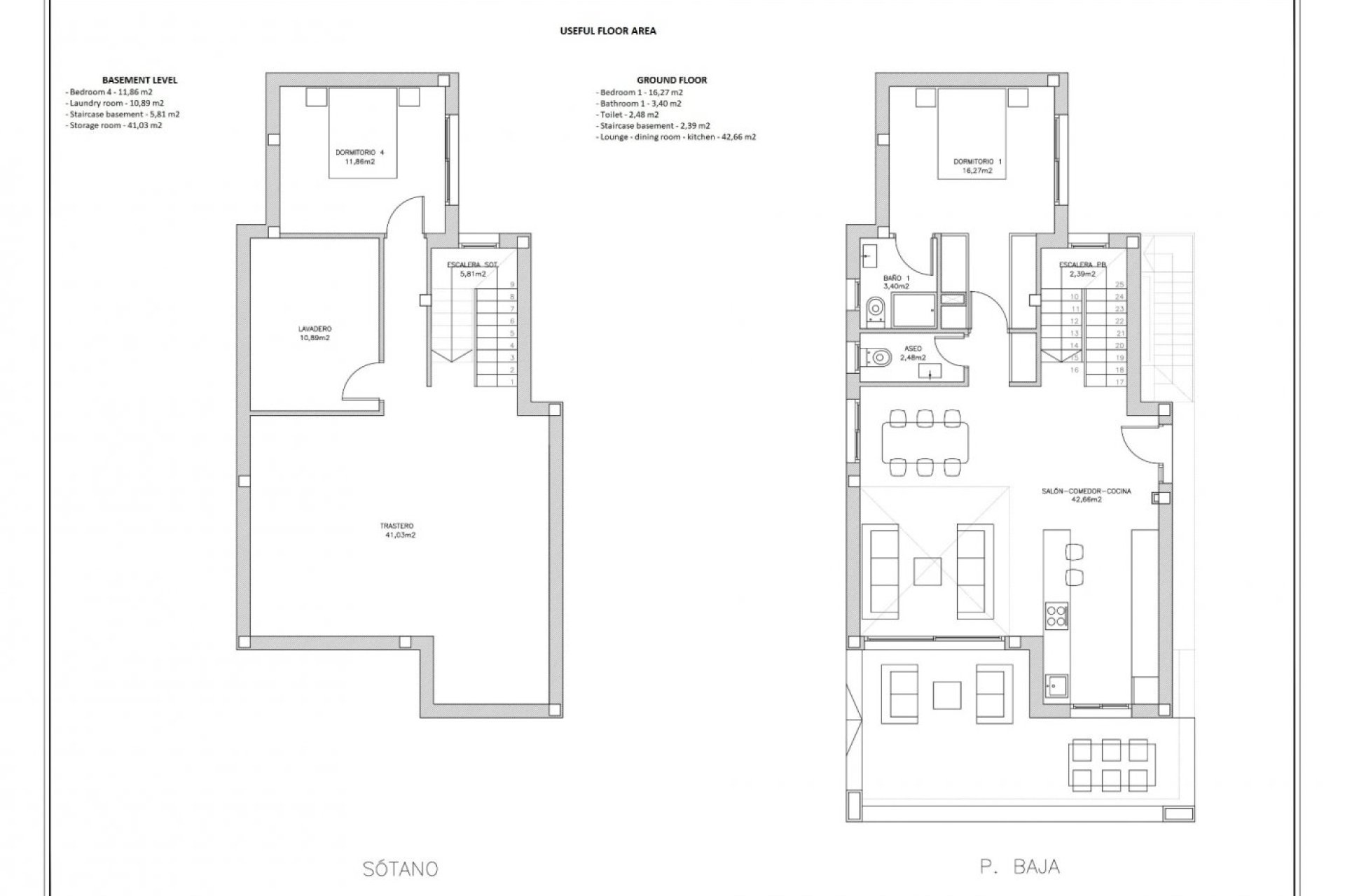
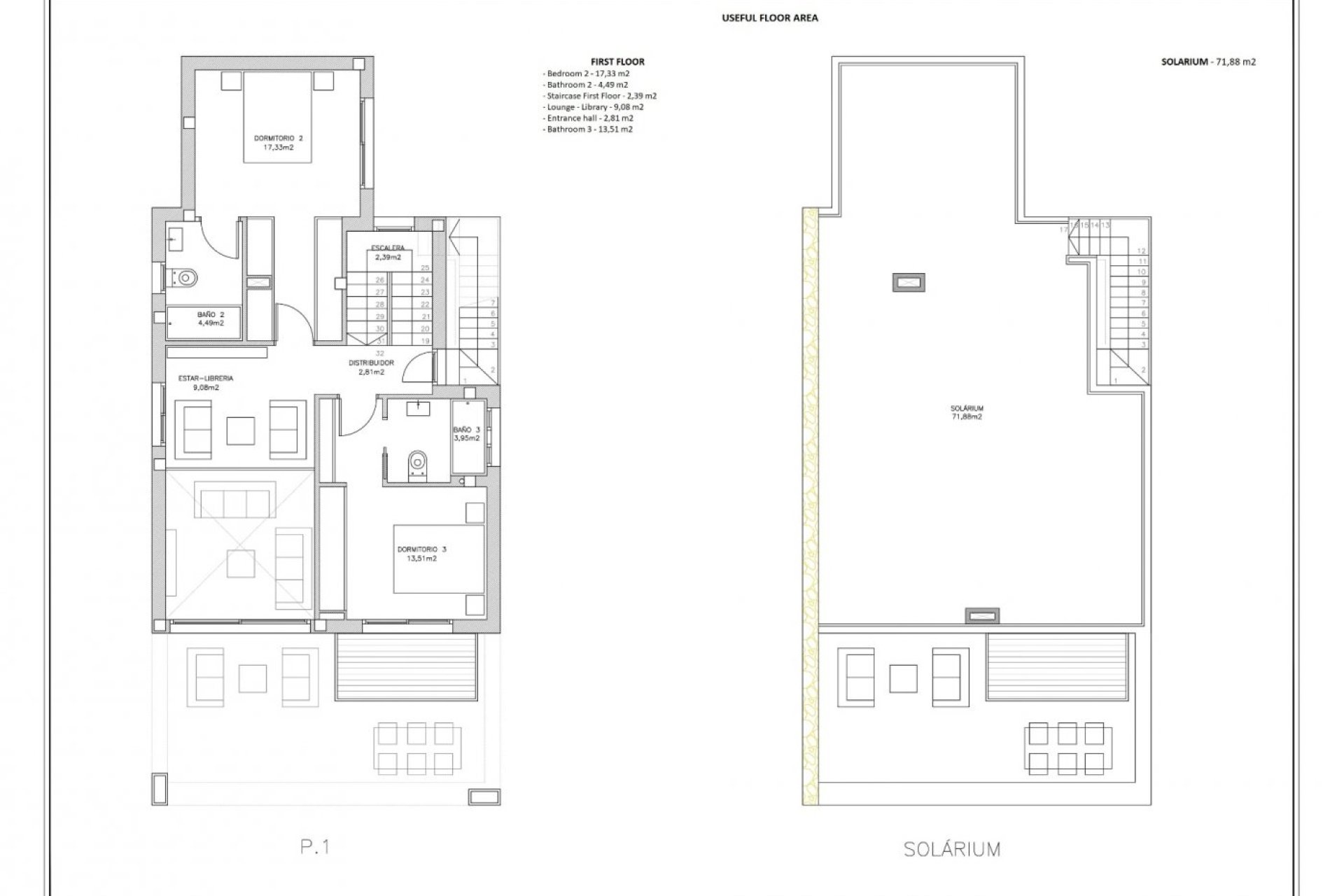
  • Mètres238m2
  • Intrigue420m2
  • Chambres4
  • Nbr. Sdb4
  • PiscineOui

La description

2 NOUVELLES VILLAS À TORREVIEJA

Emplacement

Faites votre demande

Responsable du traitement: Desire Property Rentals, SL, Finalité du traitement: Gestion et contrôle des services proposés sur le site Web des Services immobiliers, Envoi d'informations via newsletter et autres, Base légale: Par consentement, Destinataires: Les données ne seront pas partagées, sauf à des fins comptables, Droits des personnes concernées: Accéder, rectifier et supprimer les données, demander leur portabilité, s’opposer au traitement et en demander la limitation, Source des données: La personne concernée, Informations supplémentaires: Vous pouvez consulter les informations supplémentaires et détaillées sur la protection des données Ici.
Rechercher des propriétés
WhatsApp Parlons-en!