Appartement · Nouvelle Construction Playa Flamenca · Costa Blanca South

REF: N6104
395.000€

Aperçu

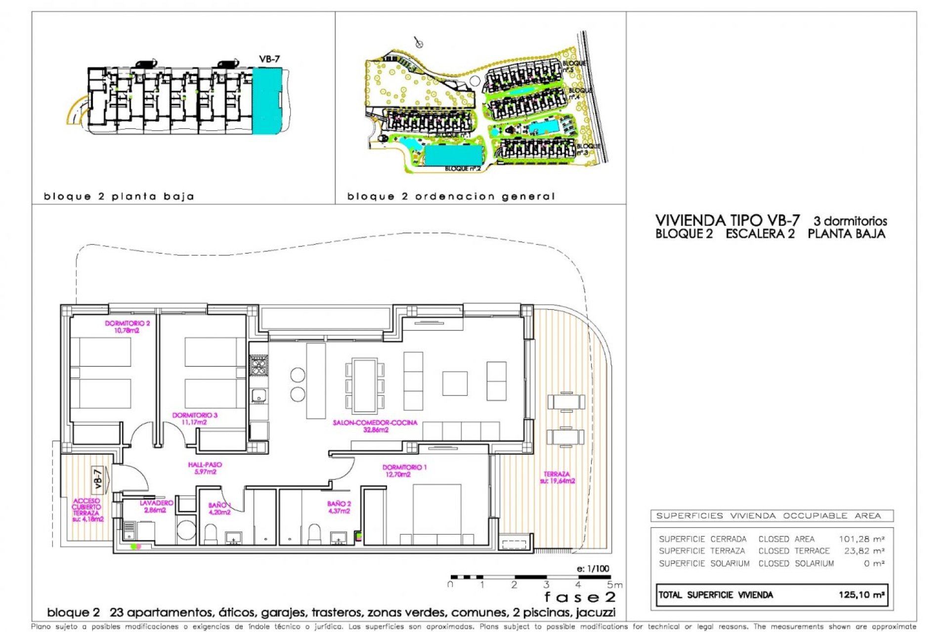
  • Mètres99m2
  • Chambres3
  • Nbr. Sdb2
  • PiscineOui

La description

NOUVELLE CONSTRUCTION RÉSIDENTIELLE À PLAYA FLAMENCA !!!

Emplacement

Faites votre demande

Responsable du traitement: Desire Property Rentals, SL, Finalité du traitement: Gestion et contrôle des services proposés sur le site Web des Services immobiliers, Envoi d'informations via newsletter et autres, Base légale: Par consentement, Destinataires: Les données ne seront pas partagées, sauf à des fins comptables, Droits des personnes concernées: Accéder, rectifier et supprimer les données, demander leur portabilité, s’opposer au traitement et en demander la limitation, Source des données: La personne concernée, Informations supplémentaires: Vous pouvez consulter les informations supplémentaires et détaillées sur la protection des données Ici.
Rechercher des propriétés
WhatsApp Parlons-en!