Entdecken Sie dieses wunderschöne, junge und moderne Haus im beliebten Ciudad Quesada. Diese perfekt gepflegte Immobilie befindet sich in einer schönen, geschlossenen Wohnanlage und bietet alles, was Sie für ein komfortables und stilvolles Leben unter der spanischen Sonne benötigen.
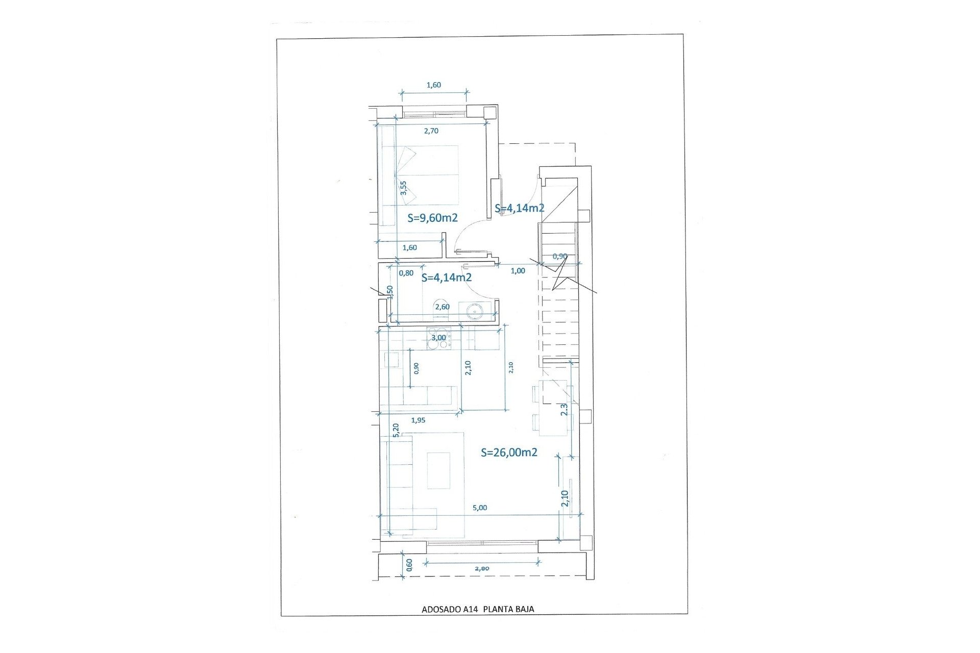
Die Immobilie verfügt über 3 geräumige Schlafzimmer und 2 moderne Badezimmer, ideal sowohl für den dauerhaften Wohnsitz als auch für die Feriennutzung. Die offene Küche geht nahtlos in den hellen Wohnbereich über und ist mit hochwertigen Ausstattungsmerkmalen versehen, darunter ein praktischer Quooker-Wasserhahn.
Im Außenbereich genießen Sie einen sonnigen Garten und eine Terrasse, perfekt zum Entspannen oder zum Empfang von Gästen. Darüber hinaus verfügt das Haus über eine großzügige Sonnenterrasse, auf der Sie das ganze Jahr über die Sonne genießen können. Die Wohnanlage bietet einen gepflegten Gemeinschaftsgarten und einen Swimmingpool, was für ein zusätzliches Gefühl von Luxus und Entspannung sorgt.
Die Lage ist hervorragend: In Gehweite finden Sie verschiedene Geschäfte, Bars und Restaurants, und das lebhafte Zentrum mit allen Annehmlichkeiten liegt in unmittelbarer Nähe. Außerdem befinden Sie sich nur 10 km von den wunderschönen Stränden der Costa Blanca entfernt.
Die Immobilie ist mit zahlreichen Extras ausgestattet, die den Wohnkomfort erhöhen, wie z. B. Sonnenschutz, eine Wasserenthärtungsanlage mit Filtersystem und eine individuell regulierbare Klimaanlage sowohl im Obergeschoss als auch im Erdgeschoss.
Kurz gesagt: ein bezugsfertiges Haus in bester Lage – ideal für alle, die Komfort, Qualität und einen unbeschwerten Lebensstil in einer schönen Umgebung suchen.
SUMA: Euro pro Jahr.
Gemeinschaftskosten: 660 Euro/Jahr.