Bungalow · Neue Gebäude Los Balcones · Costa Blanca Süd

REF: N9509
259.000€

Übersicht

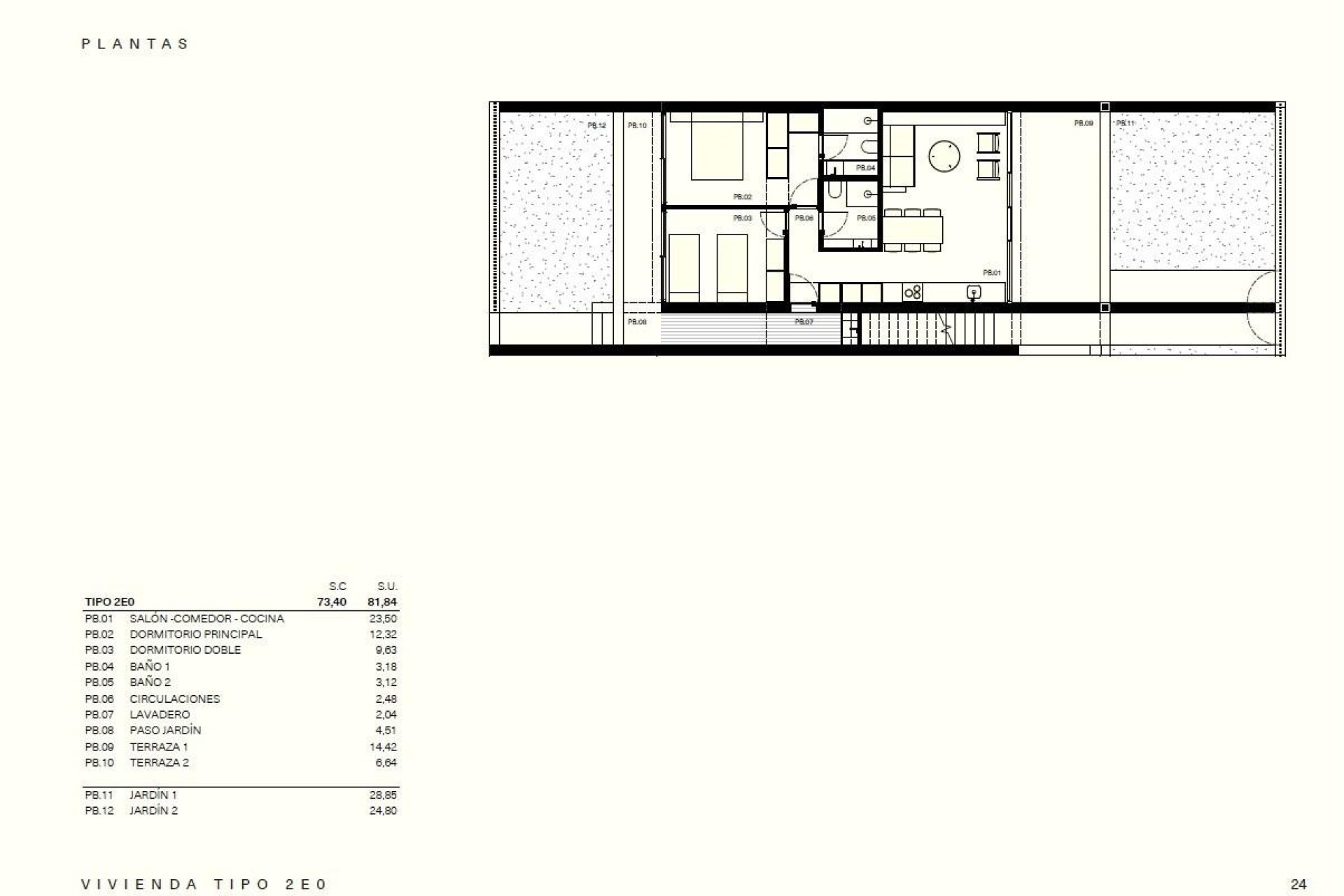
  • Meter81m2
  • Grundstück53m2
  • Schlafzimmer2
  • Badezimmer2
  • SchwimmbadJa

Beschreibung

Neubau-Wohnungen in Los Balcones, Torrevieja

Stadt

Stellen Sie Ihre Anfrage

Verantwortlicher: Desire Property Rentals, SL, Zweck der Verarbeitung: Verwaltung und Kontrolle der über die Immobilien-Service-Website angebotenen Dienste, Versand von Informationen über Newsletter und andere, Rechtsgrundlage: Durch Zustimmung, Empfänger: Daten werden nicht weitergegeben, außer zu Buchhaltungszwecken, Rechte der betroffenen Personen: Zugriff, Berichtigung und Löschung der Daten, Antrag auf Übertragbarkeit, Widerspruch gegen die Verarbeitung und Beantragung einer Einschränkung, Quelle der Daten: Die betroffene Person, Zusätzliche Informationen: Zusätzliche und detaillierte Informationen zum Datenschutz finden Sie Hier.
Suche Immobilien
WhatsApp Lass uns reden!