NEU GEBAUTE STADTHÄUSER MIT MEERBLICK IN MANILVA
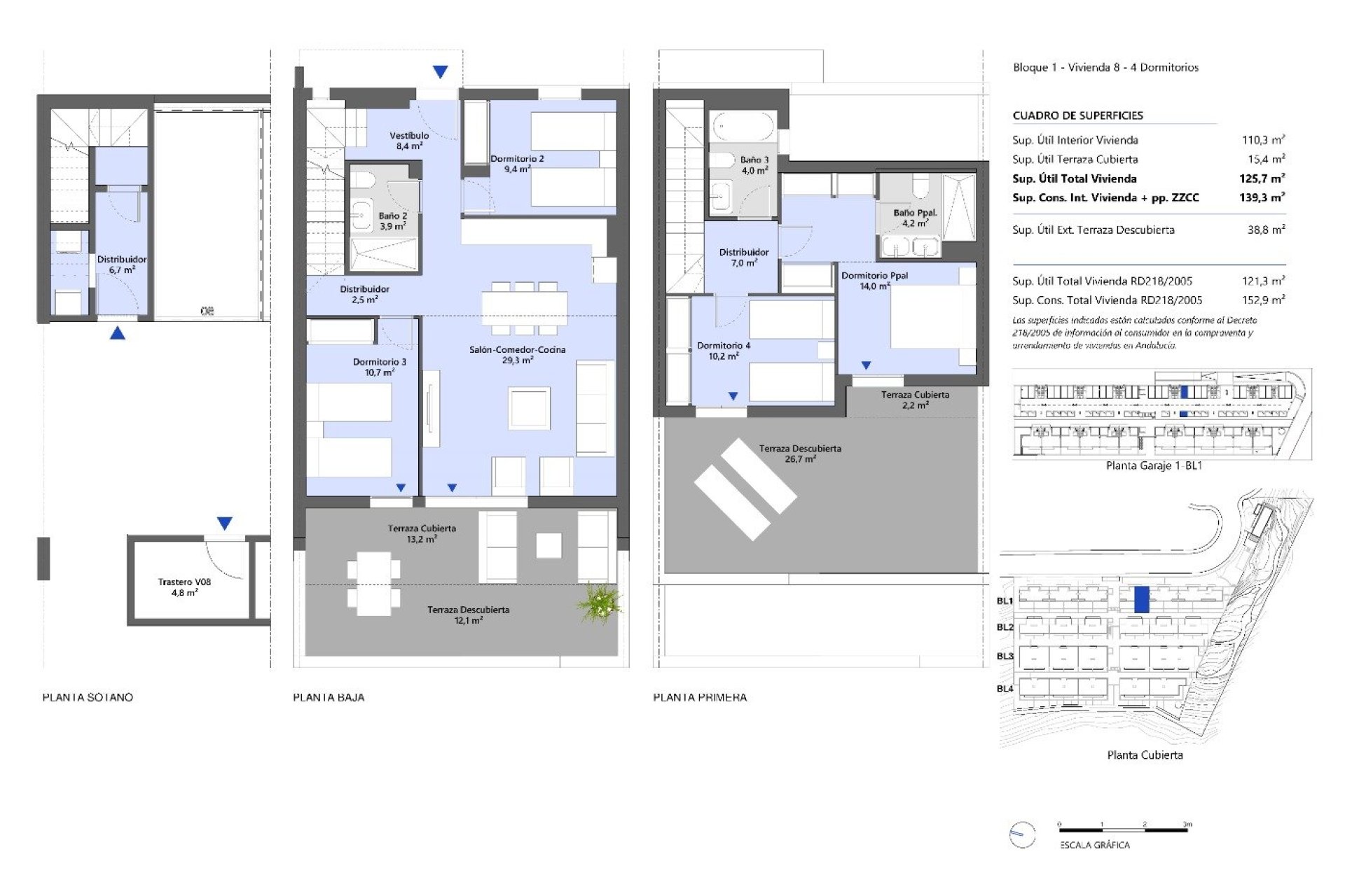
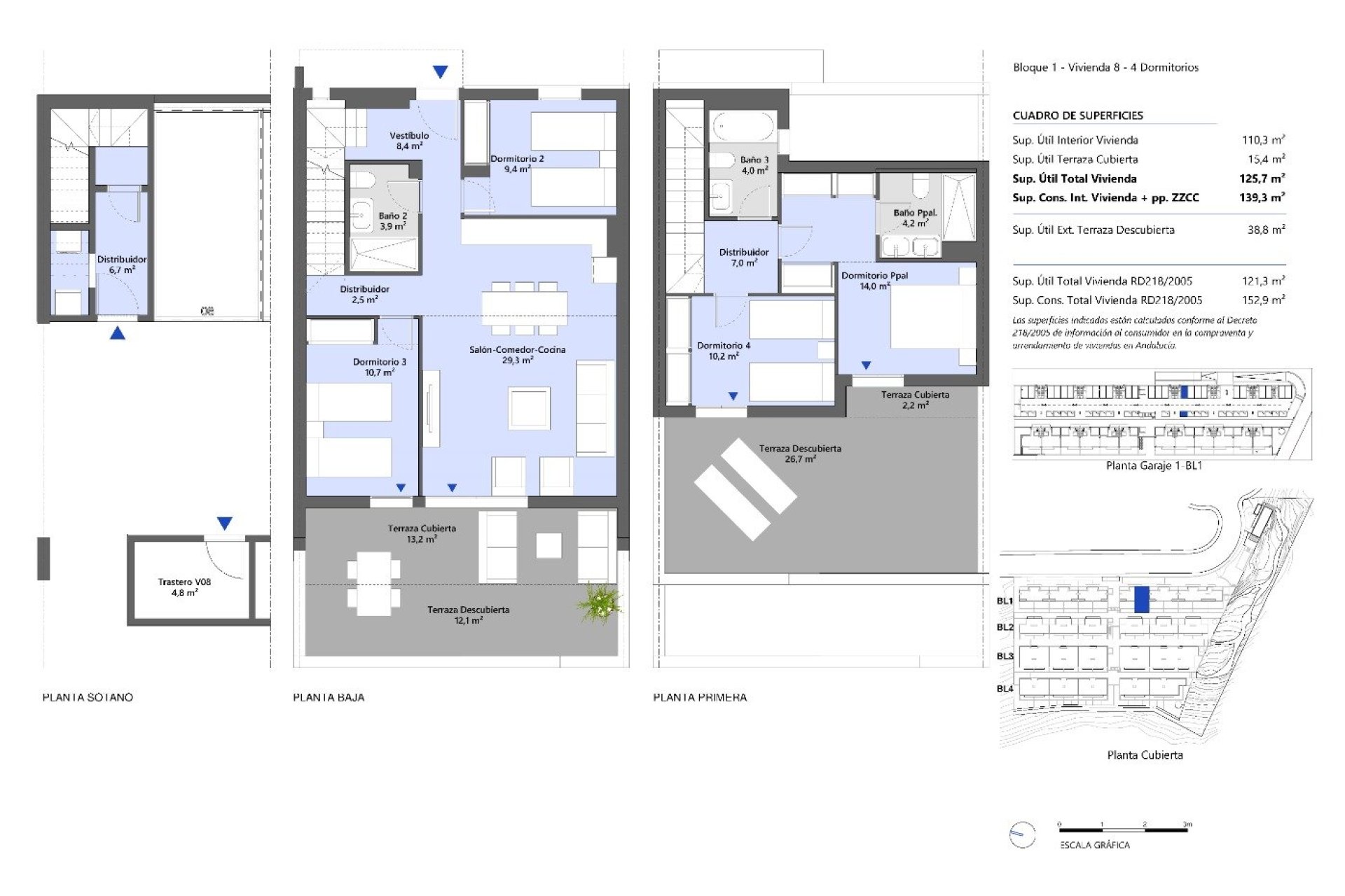
Wunderschöne Neubausiedlung mit 46 Reihenhäusern mit 3 und 4 Schlafzimmern in Manilva.
Stadthäuser in vier Reihen angeordnet mit Blick auf das Meer.
Alle Immobilien verfügen über einen eigenen Garagenplatz für maximalen Komfort. Es gibt auch einen zusätzlichen Raum mit Lagerräumen.
Sie können zwischen verschiedenen Modellen mit großzügigen Terrassen, Garten und Süd-West-Ausrichtung wählen.
Die Organisation der Residenz ist auf die Menschen ausgerichtet, die dort leben. Aus diesem Grund haben wir sichere und freundliche Gemeinschaftsbereiche geschaffen, die zu Aktivitäten einladen.
Umgeben von wunderschönen mediterranen Gärten mit Zugang zur Natur, mit Spazierwegen und Ruhezonen, mit einem großen Swimmingpool, einem Gemeinschaftsraum, einem Spa und einem Fitnessraum, den man allein oder in Gesellschaft von Familie und Freunden genießen kann.
Die Wohnanlage ist auf die unterschiedlichen Lebensbedürfnisse der heutigen Familien zugeschnitten.
Manilva ist eine Küstenstadt in der Provinz Malaga an der Grenze zur Provinz Cádiz in der autonomen Gemeinschaft Andalusien in Spanien.
Manilva ist eine sehr touristische Stadt, vor allem im Sommer wegen ihres guten Klimas und ihrer Atmosphäre. Es ist ein ideales Ziel für Touristen, die Ruhe und Erholung suchen und vom Meer umgeben sind.
Die Villen befinden sich 1 Stunde und 10 Minuten Fahrt vom Flughafen Malaga entfernt.
638