Villa · Neue Gebäude Las Palas · Costa Calida - Inland

REF: N6877
320.000€

Übersicht

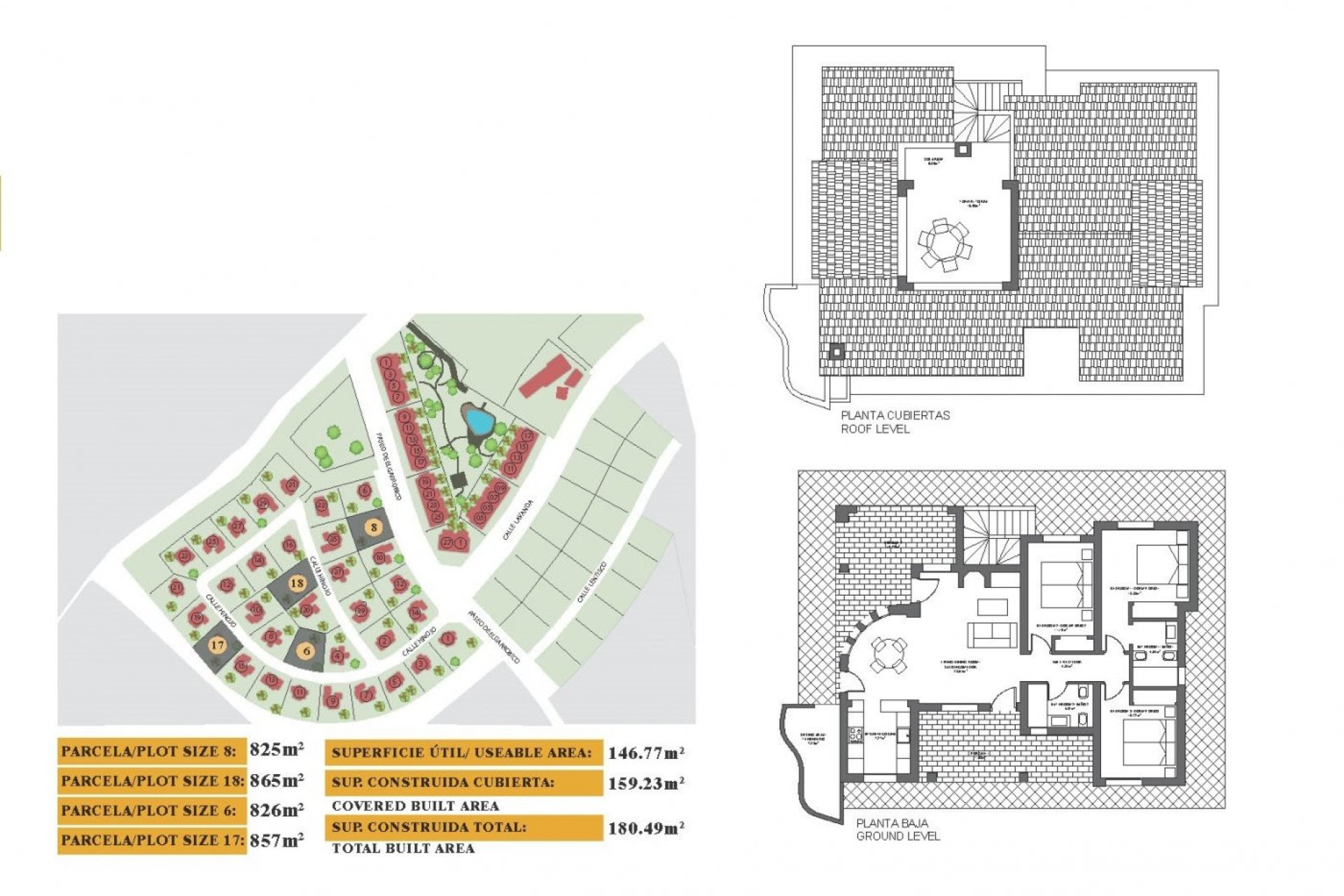
  • Meter180m2
  • Grundstück850m2
  • Schlafzimmer3
  • Badezimmer2

Beschreibung

SCHLÜSSELFERTIGE VILLA IN FUENTE ALAMO, MURCIA

Stadt

Stellen Sie Ihre Anfrage

Verantwortlicher: Desire Property Rentals, SL, Zweck der Verarbeitung: Verwaltung und Kontrolle der über die Immobilien-Service-Website angebotenen Dienste, Versand von Informationen über Newsletter und andere, Rechtsgrundlage: Durch Zustimmung, Empfänger: Daten werden nicht weitergegeben, außer zu Buchhaltungszwecken, Rechte der betroffenen Personen: Zugriff, Berichtigung und Löschung der Daten, Antrag auf Übertragbarkeit, Widerspruch gegen die Verarbeitung und Beantragung einer Einschränkung, Quelle der Daten: Die betroffene Person, Zusätzliche Informationen: Zusätzliche und detaillierte Informationen zum Datenschutz finden Sie Hier.
Suche Immobilien
WhatsApp Lass uns reden!