Bungalou · Construcție Nouă Doña Pepa · Costa Blanca South

REF: SP1442
390.000€

Prezentare generală

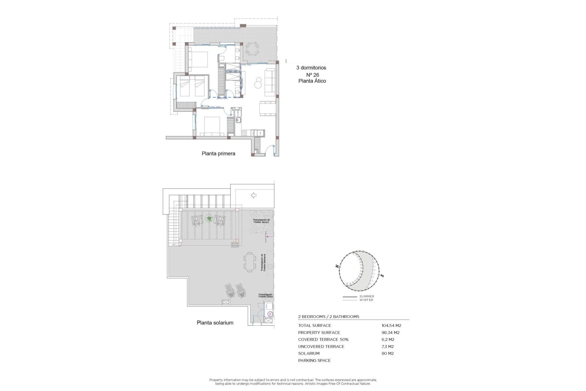
  • Metri108m2
  • Dormitoare3
  • Băi2
  • PiscinăDa

Locație

Fă o solicitare

Operatorul de date: Desire Property Rentals, SL, Scopul prelucrării datelor: Gestionarea și controlul serviciilor oferite prin intermediul site-ului web, trimiterea de informații prin newsletter și altele, Baza legală: Consimțământul, Destinatari: Datele nu vor fi cedate, cu excepția scopurilor contabile, Drepturile persoanelor vizate: Accesul, rectificarea și ștergerea datelor, solicitarea portabilității acestora, opoziția față de prelucrare și solicitarea limitării prelucrării, Sursa datelor: Persoana vizată, Informații suplimentare: Informații detaliate despre protecția datelor sunt disponibile aici.
Caută proprietăți
WhatsApp Hai să vorbim!