Apartman · Új Építésű Polideportivo · Costa del Sol

REF: N9241
495.000€

Áttekintés

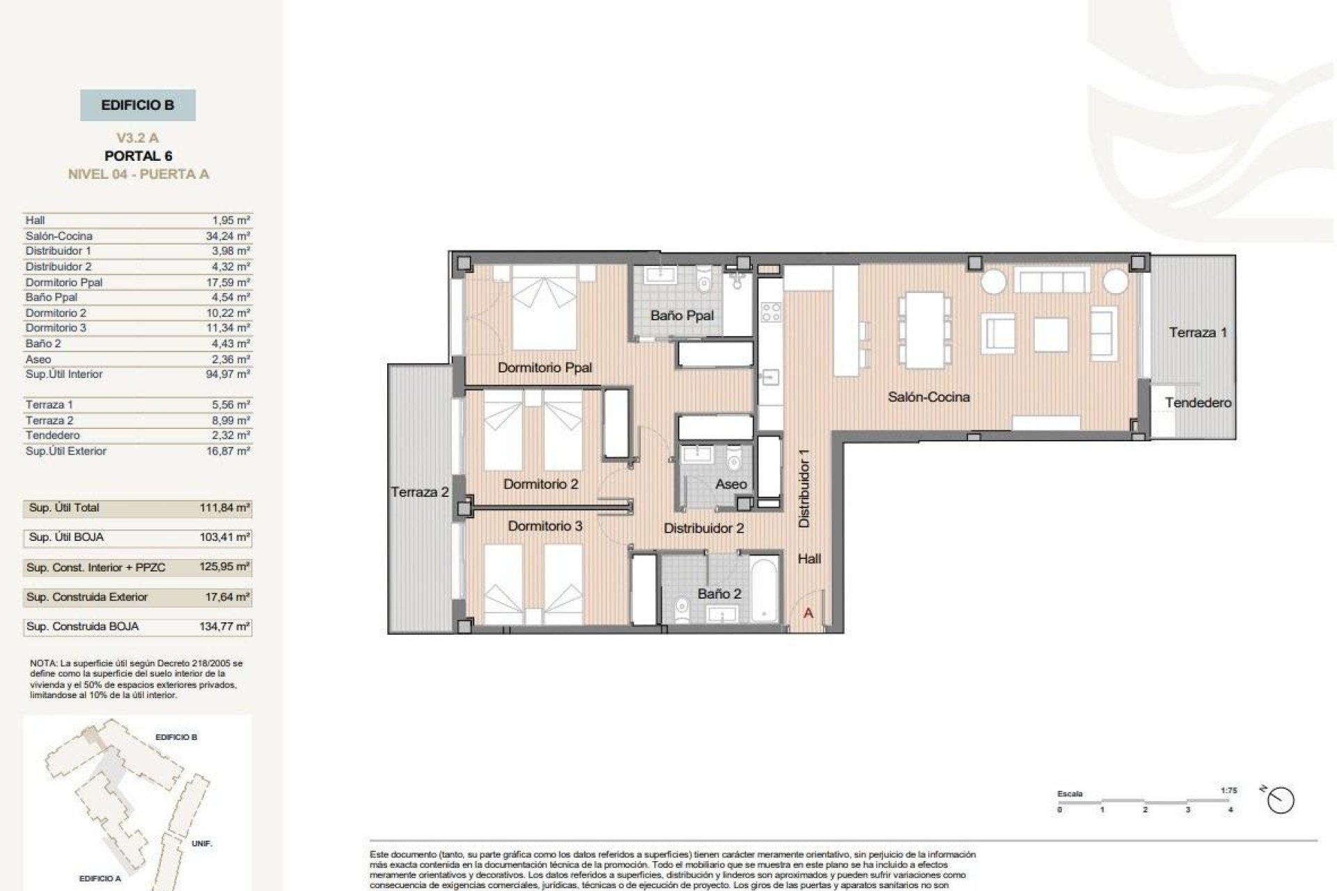
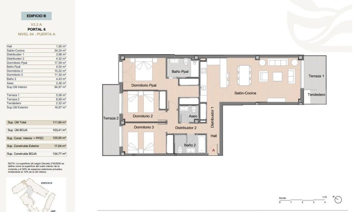
  • Alapterület134m2
  • Hálószobák3
  • Fürdőszobák2
  • MedenceIgen

Elhelyezkedés

Kérdezz tőlünk!

Adatkezelő: Desire Property Rentals, SL, Az adatkezelés célja: Ingatlanszolgáltatások kezelése és ellenőrzése a weboldalon keresztül, hírlevelek és egyéb tájékoztatók küldése, Jogalap: Hozzájárulás alapján, Címzettek: Az adatok nem kerülnek átadásra, kivéve a könyvelés céljára, Az érintettek jogai: Hozzáférés, helyesbítés és törlés, az adatok hordozhatóságának kérvényezése, az adatkezelés elleni tiltakozás és korlátozás kérvényezése, Az adatok forrása: Maga az érintett, További információ: Részletes adatvédelmi tájékoztató itt elérhető.
Ingatlanok keresése
WhatsApp Üzenj nekünk!