New Build 4 Bedroom Townhouses in Torre del Mar Just 800 m from the Beach
Modern Family Homes on the Costa del Sol
This exclusive residential development consists of 21 contemporary 4 bedroom townhouses located in Torre del Mar, one of the most sought after coastal areas in the Axarquia region of the Costa del Sol. Just 800 meters from the beach, these spacious homes are ideal for families seeking comfort, outdoor living and proximity to the sea.
Torre del Mar is known for its long sandy beaches, lively promenade, excellent gastronomy and year round services. The town offers a perfect balance between relaxed coastal living and modern infrastructure, with schools, health centers, shopping areas and sports facilities all within easy reach.
Spacious Layout Over Four Levels with Private Solarium
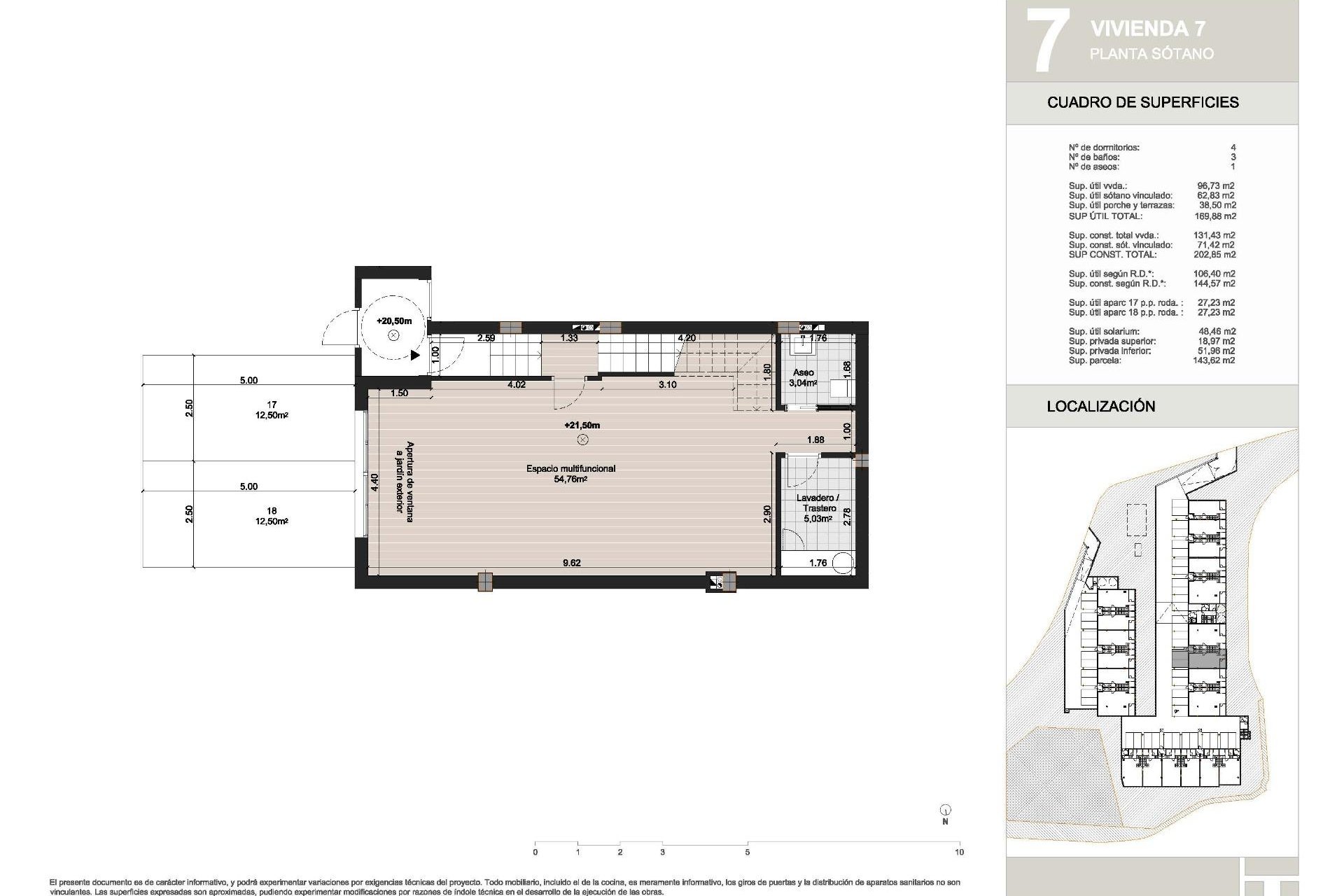
Each townhouse is distributed over three main floors plus a private rooftop solarium of approximately 48 m2, offering generous interior and exterior spaces.
The basement level includes private parking for two cars, a multifunctional room with natural light that can be used as a games room, office or additional bedroom, a laundry storage area and a guest toilet.
On the ground floor, the open plan living and kitchen area connects directly to the front terrace and private garden. This level also features one bedroom and a full bathroom, making it ideal for guests or multigenerational living. An additional rear terrace provides additional outside space.
The first floor offers three additional bedrooms and two bathrooms, one of them en suite, as well as two terraces at the front and rear of the property.
Quality Specifications and Energy Efficiency
These new build homes are delivered with high quality finishes and modern installations, including:
Fitted kitchen with ceramic hob, sink and extractor hood
Fully installed ducted air conditioning
Aerothermal system for hot water
Bathrooms with furniture, mirrors and shower screens
Electric shutters in living room and bedrooms
Video intercom system
The residential complex also features landscaped gardens and a communal swimming pool for residents to enjoy.
Excellent Location Near Beach, Golf and Malaga City
The development is just 4 km from Baviera Golf and 30 km from Málaga city center, with direct access to the A7 motorway.
Distances to Key Points of Interest
Beach 0.8 km
Baviera Golf 4 km
Málaga city 30 km
Malaga Airport 45 km
Vélez Málaga 5 km
Your Ideal Home by the Sea in Torre del Mar
These modern townhouses offer space, quality and an unbeatable location close to the beach. Contact us today to receive more information or to arrange a viewing of this outstanding new build development in Torre del Mar.
638