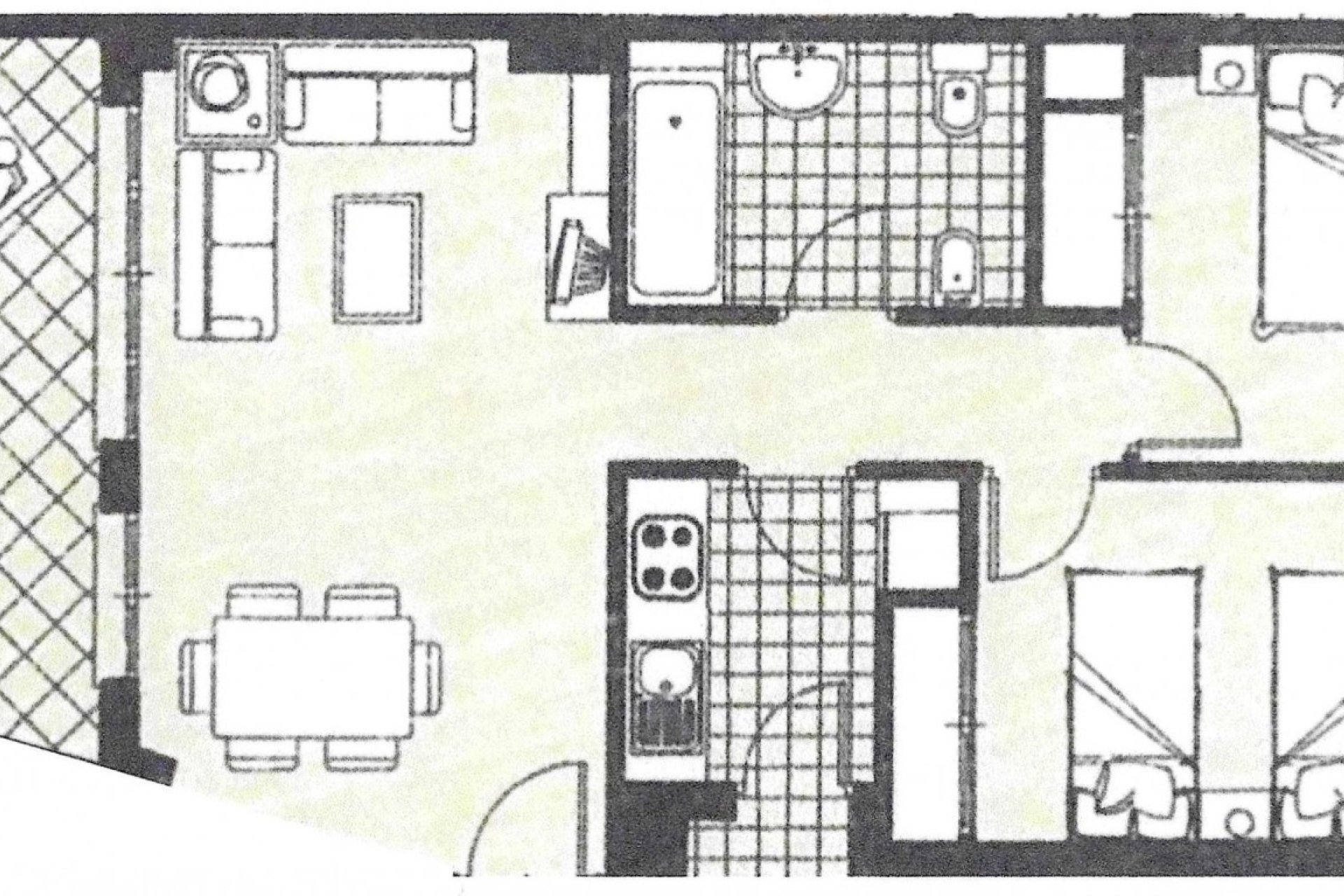
TWO BEDROOM ONE BATHROOM FRONT LINE GOLF APARTMENTThis first floor apartment is located on Phase 4 of this Jack Niklaus designed 18-hole golf Resort and is approximately a ten minute stroll to the on Resort ´town centre´ with restaurant, bar, supermarket, coffee shop and delightful gardens of the Hacienda of the Riquelme family from where the Resort takes its name.There are 19 swimming pools on the Resort, with the nearest being just a stone´s throw away.The apartment enters into the lounge / dining area with large sliding patio doors leading onto the terrace which has been enclosed with sliding patio doors allowing for year round use and tiled to match the inside of the property.There are lovely views across and down the golf course to the mountains in the distance.The hallway leads to the two bedrooms. Each bedroom has built-in double wardrobes with sliding doors offering ample storage and drawer space and independent Juliette balconies.The kitchen comprises of a range of base units, worktop and wall units and is equipped with oven, hob, extractor, washing machine, dishwasher and fridge freezer.The bathroom comprises of toilet, bidet, vanity unit with wash-hand basin and mirror above. There is a corner shower cubicle and ample space to convert this to a full width walk-in shower. It is one of the larger bathroom designs of the properties on Hacienda Riquelme.This apartment lends itself perfectly to being modernised into an American style open plan design as per the ´Remodelled Apartment´ on our websiteThe friendly and typical Spanish village of Sucina with its bars, restaurants and church square is just a few minutes away by car.Murcia International airport is located approximately 20 minutes away by car and Alicante airport approximately 1 hour 15 minutes by car.The historic cities of Murcia and Cartagena are both located approximately 40 minutes away by car.The Costa Calida beaches running along the Mediterranean coastline are only a 20 minute drive away by car.Visit the GALLERY on our website to view photographs of places to visit in the local area and beyond.