Apartment · Resale Playa De Los Locos · Costa Blanca South

REF: MLSC624752
160.000€

Overview

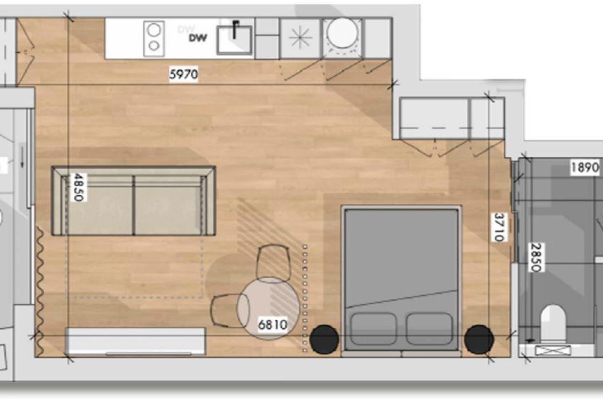
  • Meters44m2
  • Bathrooms1

Description

Apartment · Resale Playa De Los Locos · Costa Blanca South

Location

Make your inquiry

Data Controller: Desire Property Rentals, SL, Purpose of Processing: Management and control of the services offered through the Real Estate Services website, Sending information via newsletter and others, Legal Basis: By consent, Recipients: Data will not be shared, except for accounting purposes, Rights of Interested Parties: Access, rectify, and delete data, request its portability, object to processing, and request its limitation, Source of Data: The Data Subject, Additional Information: You can consult additional and detailed information on data protection Here.
Search properties
WhatsApp Let's talk!