NEW BUILD VILLAS IN SAN JAVIER
New Build project of detached villas in San Javier.
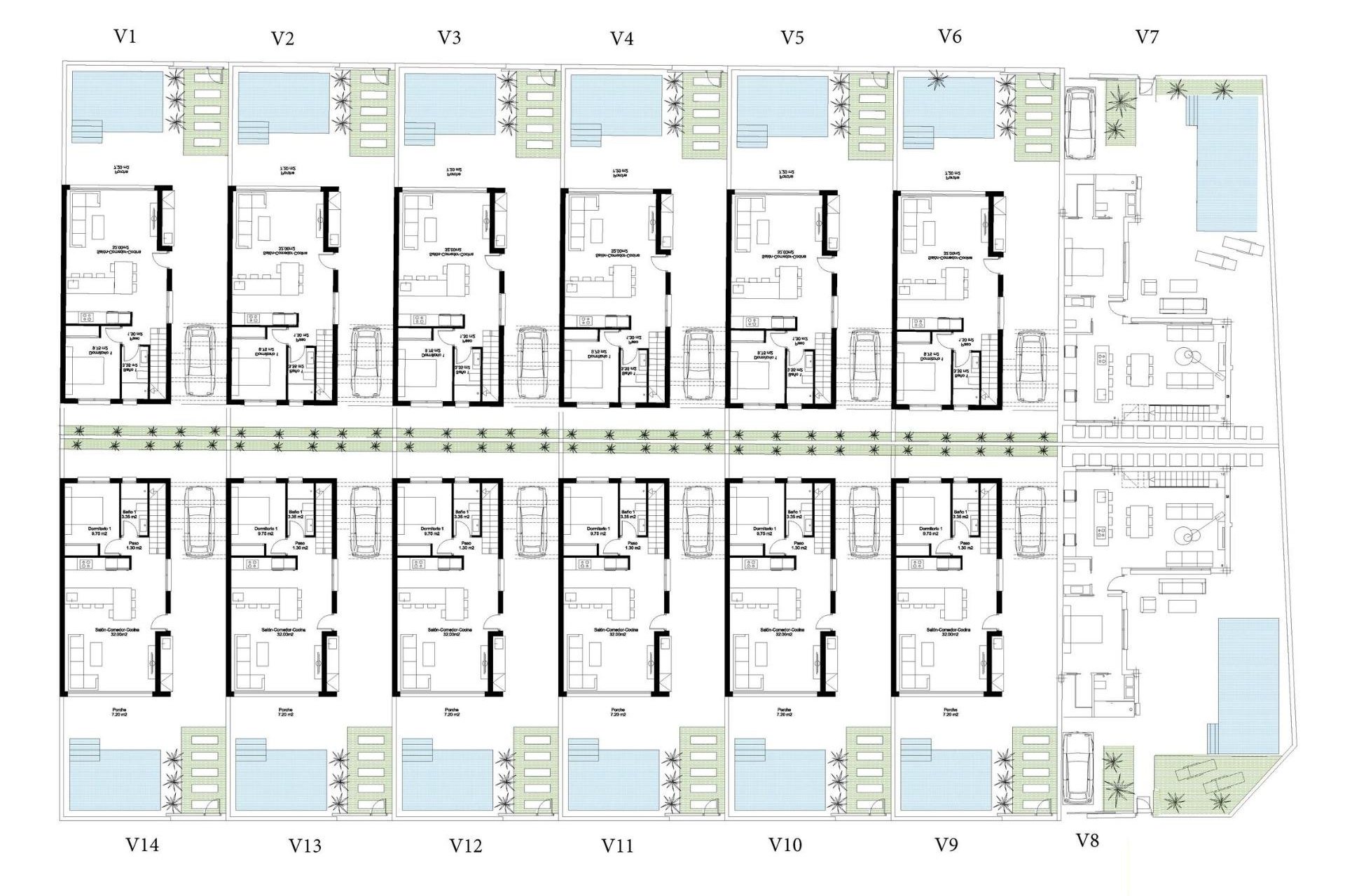
New Build villas are distributed over two floors plus the spacious roof terrace with beautiful views of the surroundings.
On the ground floor there is a bright living room with open plan kitchen and access to the terrace, a double bedroom with fitted wardrobe and a bathroom.
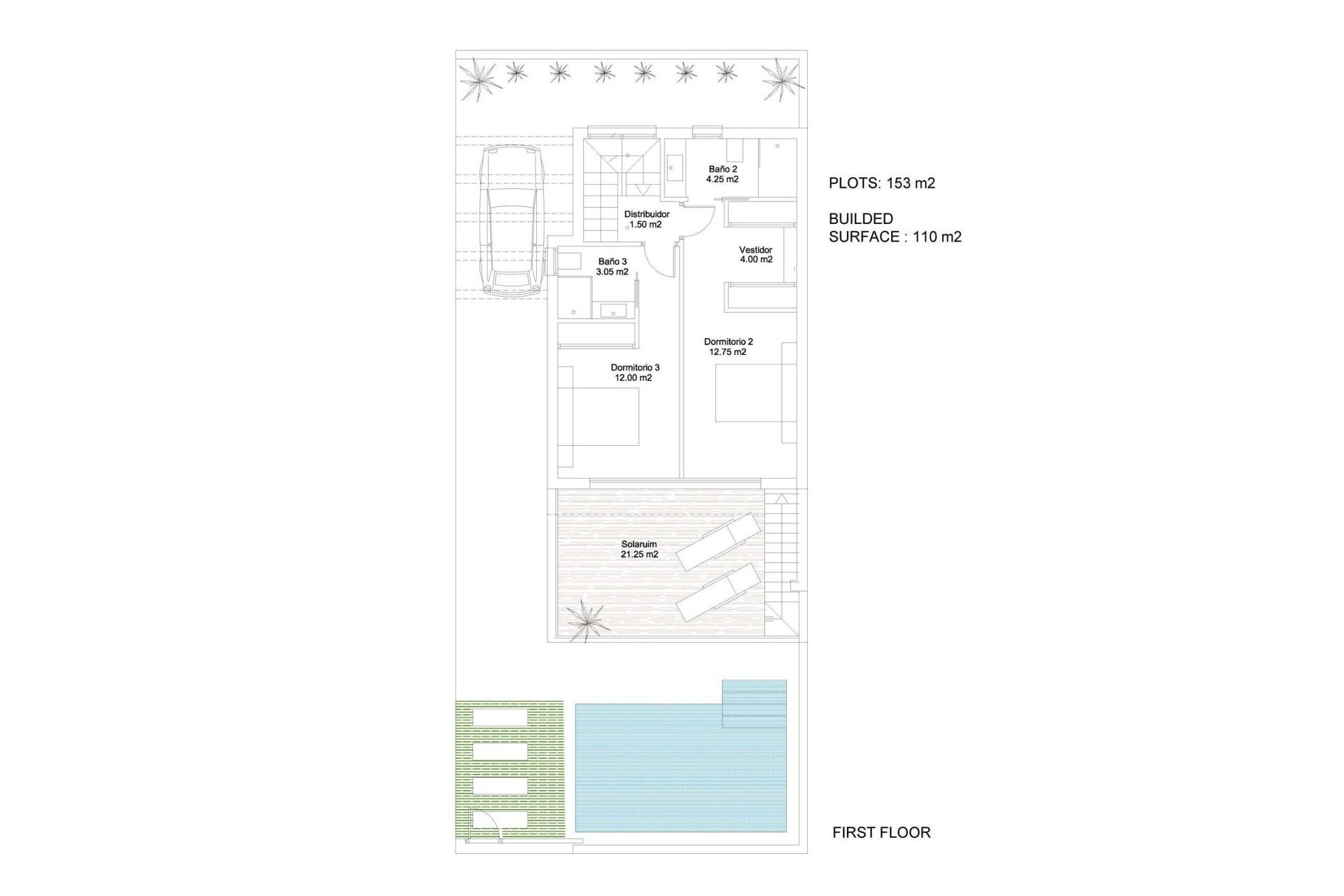
On the first floor there are 2 spacious bedrooms, one with built-in wardrobe and the other one with dressing room and bathroom en suite.
Private garden with the pool and parking space.
San Javier is close to all amenities with easy access to the beach, water sports, shops and the transport network.
Here you can enjoy all of the facilities that San Javier has to offer such as the local shops, bars and restaurants as well as being near to shopping centres, the airport of Murcia and all of the beautiful places to be found along the Mar Menor.
Corvera/Murcia airport is 30 minutes away and Alicante airport is 45 minutes away.