Penthouse · New Build Hipódromo Costa Del Sol · Costa del Sol

REF: N9016
440.000€

Overview

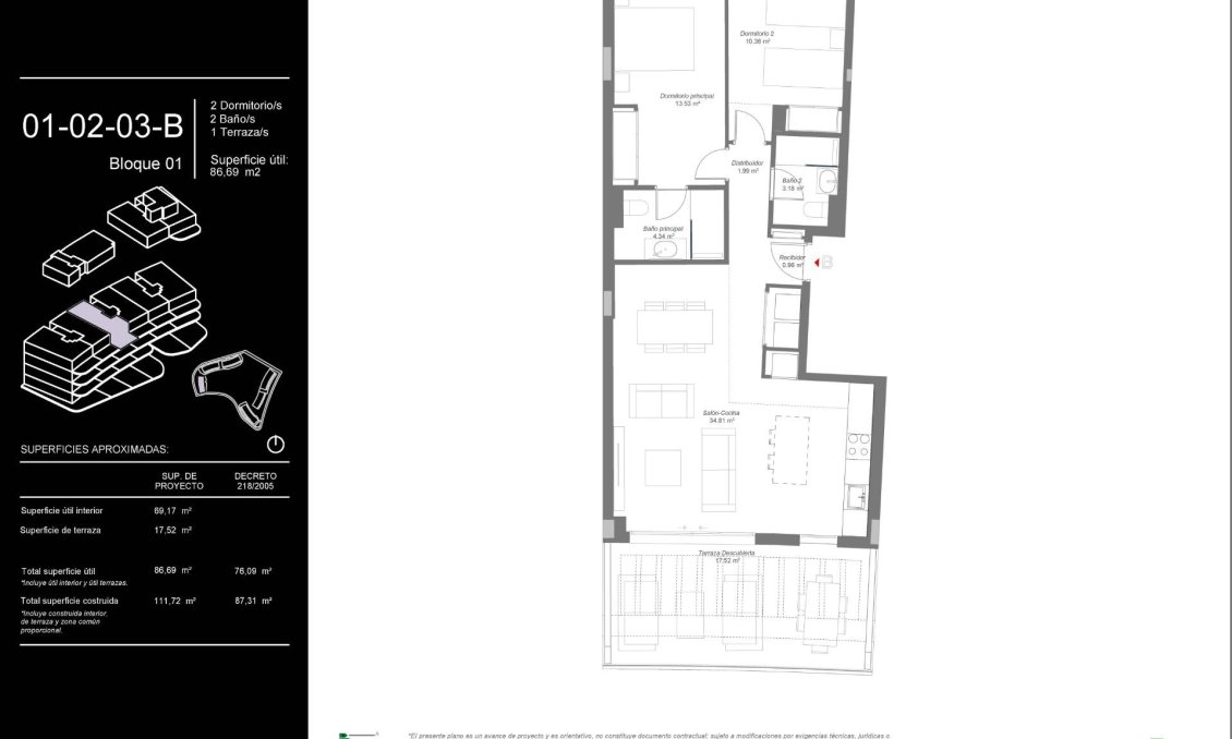
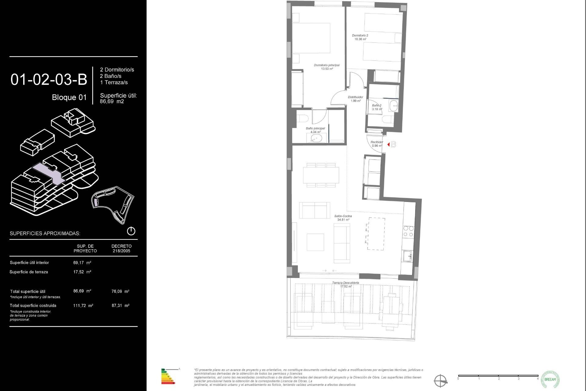
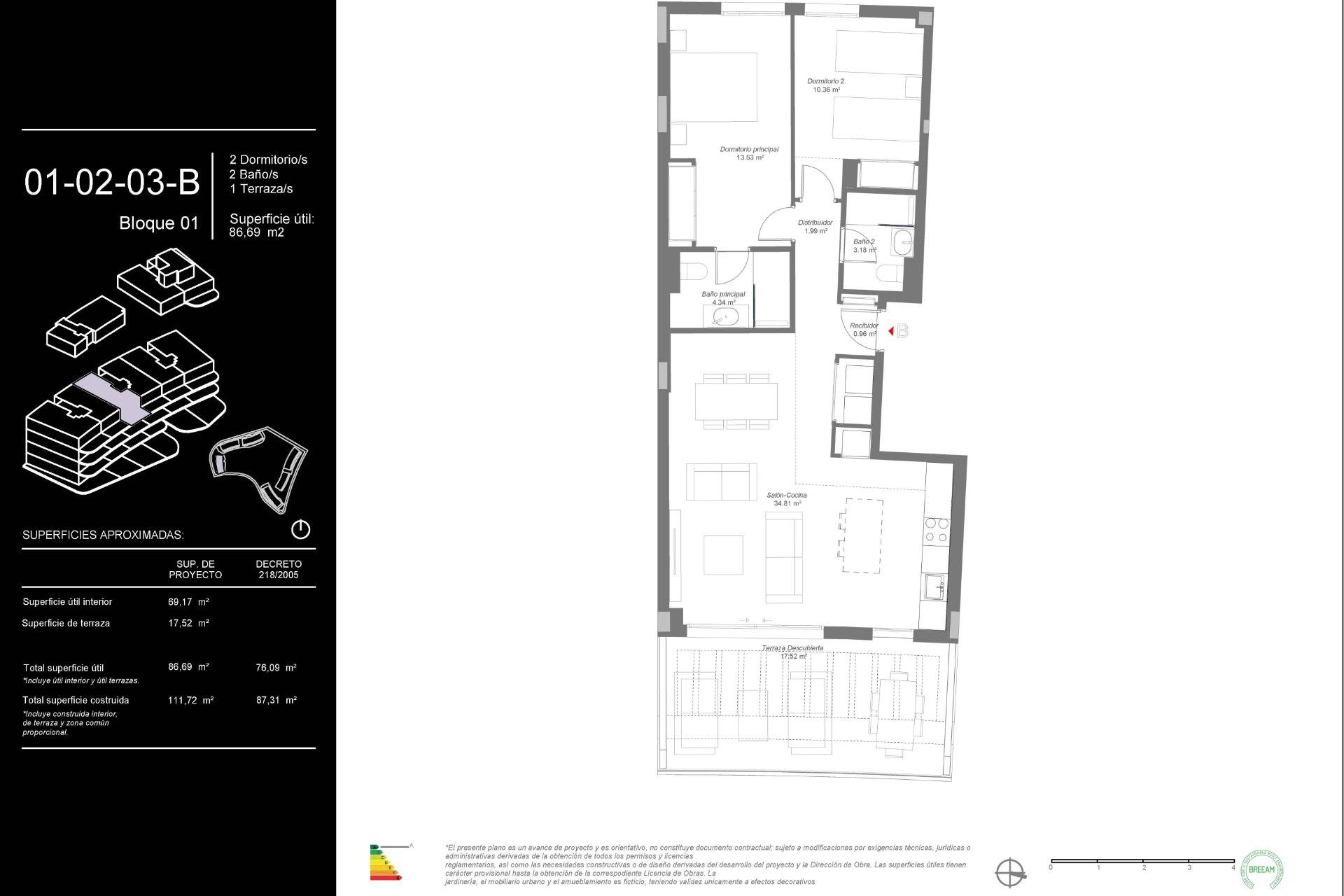
  • Meters87m2
  • Bedrooms2
  • Bathrooms2
  • PoolYes

Description

New Build Homes in Mijas Costa

Location

Make your inquiry

Data Controller: Desire Property Rentals, SL, Purpose of Processing: Management and control of the services offered through the Real Estate Services website, Sending information via newsletter and others, Legal Basis: By consent, Recipients: Data will not be shared, except for accounting purposes, Rights of Interested Parties: Access, rectify, and delete data, request its portability, object to processing, and request its limitation, Source of Data: The Data Subject, Additional Information: You can consult additional and detailed information on data protection Here.
Search properties
WhatsApp Let's talk!