NEW BUILD RESIDENTIAL COMPLEX NEAR ESTEPONA
New Build an exclusive development located in Cancelada, one of the best areas of Estepona's New Golden Mile.
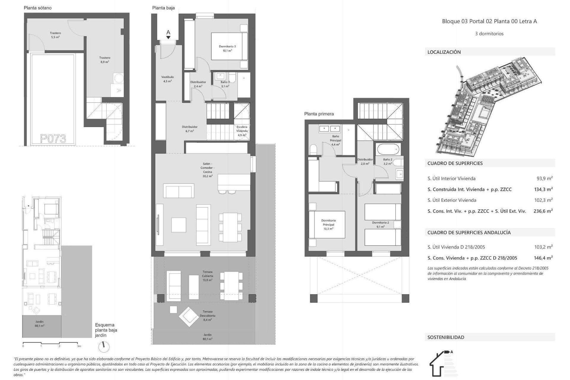
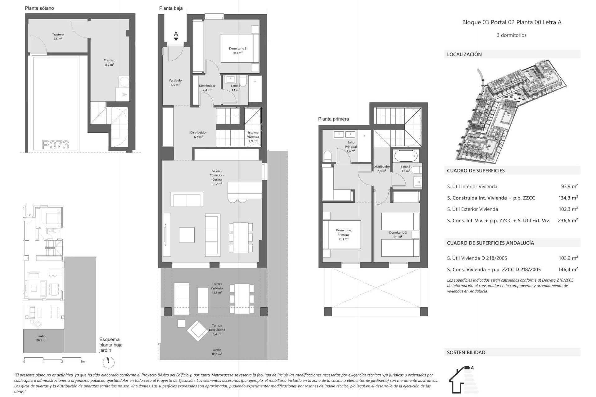
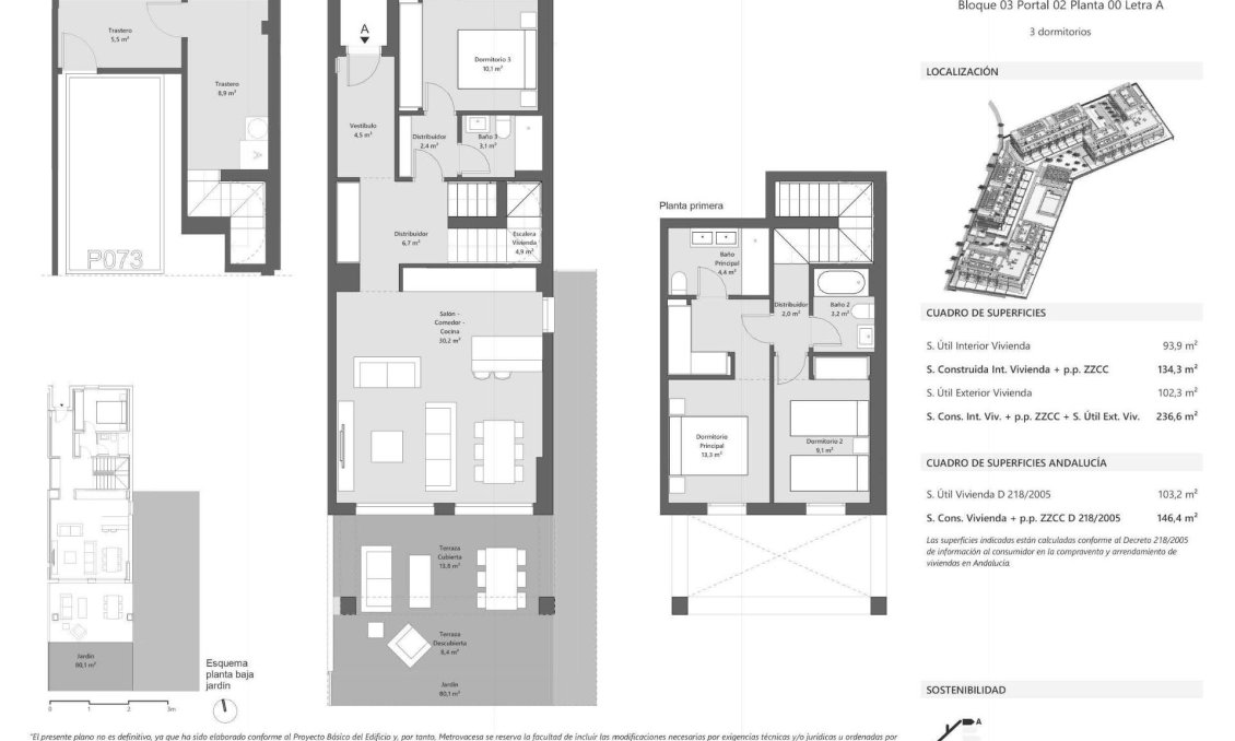
The residential complex has 82 properties distributed over 4 floors, mostly duplexes, with 2 and 3 bedrooms with terraces and/or gardens, as well as penthouses with solariums.
All the properties will have storage room and garage, and in most of them you can enjoy marvellous views of the Mediterranean Sea.
The development has a swimming pool, ideal for enjoying the more than 320 days of sun and good weather that the Costa del Sol has to offer, both alone and with the family. You will also have access to an equipped indoor gym, outdoor sports area, 2 petanque courts and the exclusive Club House of Cancelada.
Situated in a privileged location, next to Estepona, just a few minutes from the beach and close to golf courses. Only 10 minutes from Marbella, and 45 minutes from Malaga International Airport.
You can enjoy a real quality of life, with an average annual temperature of 20º and more than 320 days of sunshine a year. You will enjoy a wide variety of golf courses, kilometres of tranquil coastline, sun, nature, and the gastronomy of the area, from its international restaurants to its welcoming local cuisine.
It perfectly combines the tradition of its cobbled streets of whitewashed houses and patios with their pots of colourful flowers, with modernity and the best leisure facilities on the Costa del Sol. It boasts a privileged location between the sea and the mountains, making it one of the most attractive tourist destinations in the province.